• <

Keller wspiera Port Gdańsk w hydrotechnicznym rozwoju [foto]

sons

27.05.2020 07:24 Źródło: KELLLER
Strona główna Porty Morskie, Terminale, Logistyka Morska, Transport Morski Keller wspiera Port Gdańsk w hydrotechnicznym rozwoju [foto]
Keller wspiera Port Gdańsk w hydrotechnicznym rozwoju [foto] - GospodarkaMorska.pl
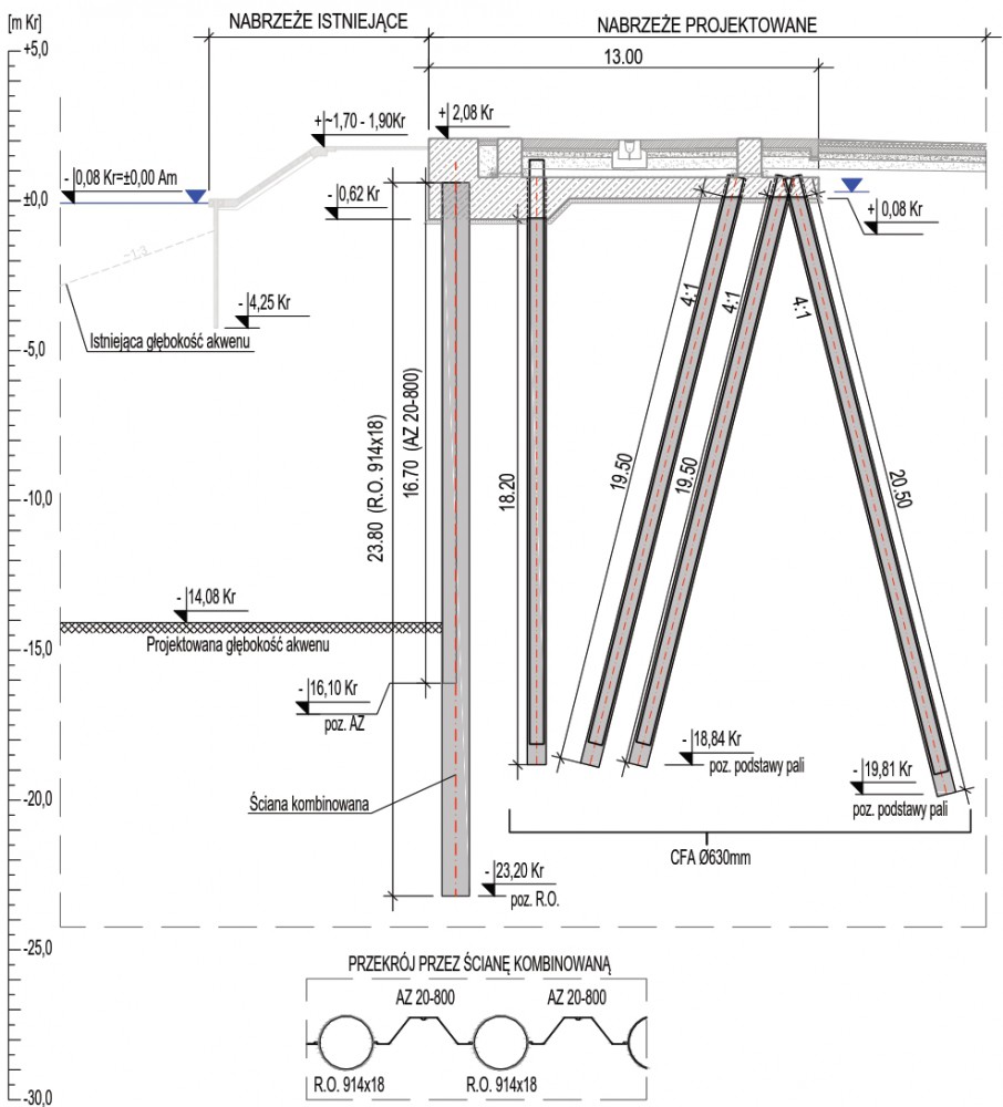
Przez ostatnie kilka lat firma Keller Polska stopniowo zwiększała udział w hydrotechnice. Pierwszy projekt Kellera w Porcie Gdańskim w technologii ściany kombinowanej (z ang. combi-wall) przyczynił się do rozwoju jednego z największych i najszybciej rozwijających się portów w Europie.
 

Port Gdańsk, znajdujący się nad południową częścią Morza Bałtyckiego, jest niezwykle ważnym punktem transportowym i przeładunkowym, łączącym państwa skandynawskie z drogami do południowej i wschodniej Europy.

Dzięki dofinansowaniu z Unii Europejskiej w wysokości 140 milionów euro, Port jest w trakcie realizacji programu inwestycyjnego, który poprawi połączenia drogowe i kolejowe oraz zmodernizuje wewnętrzne nabrzeża.

 

 

fot. KELLER Polska

 

 

Na Nabrzeżu Dworzec Drzewny, firma Keller Polska wykonała nową konstrukcję nabrzeża o długości 1,2 km. Po zakończeniu budowy tor wodny zostanie pogłębiony do 12,5 m. Pozwoli to na zawijanie większych statków do portu.

Zamówienie otrzymano od firmy Budimex, która jest największa firmą budowlaną w Polsce, a także największym klientem Keller Polska.

– Przez lata wykonaliśmy z sukcesem wiele projektów infrastrukturalnych dla Budimeksu – powiedział Rafał Buca, Dyrektor Techniczny Keller Polska. – Około 3 lata temu, Budimex zaczął być aktywny w sektorze morskim, a my skorzystaliśmy z okazji aby również rozwinąć udział w tym rynku. Klient zaufał naszym kompetencjom i powierzył nam zaprojektowanie oraz wykonanie tego ogromnego projektu.

Już w fazie projektowania nie obyło się bez wyzwań.

– We wstępnej analizie projektu uznaliśmy, że tradycyjne ścianki szczelne nie pozwolą na przeniesienie zakładanych obciążeń w związku z czym zaproponowaliśmy ścianę kombinowaną, która składała się z rur stalowych i profili stalowych typu AZ. Konstrukcja płyty nabrzeża opiera się na ścianie combi-wall i nachylonych palach CFA.

 

 

Keller Polska

 

 

Budowa rozpoczęła się w grudniu 2018 od wykonania pali CFA, a następnie w lutym 2019 rozpoczęliśmy pogrążanie elementów stalowych. Ogółem wykonano 47 145 m pali (2 245 o średniej długości 21 m), 437 sztuk pali stalowych o długości do 26 m i 477 sztuk grodzic wypełniających o długości do 17 m. Prawie połowa elementów ścianki została pogrążona w otwartym kanale portowym.

Zakres robót obejmował również wykonanie tymczasowej ścianki stalowej o długości 233 m gwarantujące bezpieczną pracę dźwigu o ciężarze 160 t.

– Największym wyzwaniem, zwłaszcza pod koniec zimy, był silny wiatr i wysokie fale, lecz zawsze musieliśmy zapewnić bezpieczne warunki pracy dla naszych pracowników – dodaje kierownik budowy Keller Polska – Tomasz Rybarczyk. – Dlatego zdarzały się dni, kiedy nie mogliśmy pracować ze względu na warunki pogodowe.

– To była nasza pierwsza ściana combi-wall – wiedzieliśmy, że musimy zachować szczególną uwagę – dodaje. – Aby zapewnić najwyższy poziom wykonania i kontroli robót, utworzyliśmy zespół doświadczonych i zmotywowanych specjalistów. W celu sprawdzenia jakości wykonanych pali wykonaliśmy 17 próbnych obciążeń statycznych na wciskanie, 7 obciążeń na wyciąganie oraz ponad 560 testów ciągłości pali, które potwierdziły przyjęte założenia projektowe.

SOLID PORT_790_140_2024
Port Gdańsk Business Mixer 2025

Dziękujemy za wysłane grafiki.