Australijskie Narodowe Muzeum Morskie (Australian National Maritime Museum, ANMM) poinformowało o efektach blisko 25 lat prac badawczych związanych z identyfikacją wraku oznaczonego jako RI 2394. Okazało się, że pozostałości statku znajdującego się w Newport Harbor na Rhode Island w USA to słynny Endeavour, niegdysiejszy statek Jamesa Cooka.
Oficjalny raport ogłoszony 4 czerwca tego roku był efektem lat badań podwodnych oraz związanych z kwerendą w archiwach, a także analizą pozyskanego materiału badawczego. Wiele lat zajęła właściwa identyfikacja i naukowcy są teraz z sobą zgodni, odnaleziony wrak, który przez lata był znany jako HMB Endeavour. W momencie zatopienia nazywał się Lord Sandwich i służył brytyjskiej armii do transportu zaopatrzenia i żołnierzy. Został celowo zatopiony w 1778 roku podczas wojny o niepodległość USA, aby uniemożliwić francuskiej flocie wejście do portu w Newport i zapewnić wsparcie Amerykanom. Choć domniemano odnośnie lokalizacji słynnego wraku, tak długo badacze nie byli w stanie jednoznaczny sposób go wskazać, aż do teraz.
HMB Endeavour jest znaczącym statkiem w australijskiej historii morskiej z racji na udział w wyprawie badawczej Jamesa Cooka w latach 1768-1771, gdy tworzył mapy Nowej Zelandii i wschodniego wybrzeża Australii. Symbolizował ten burzliwy okres historii, tak postępu naukowego, odkryć geograficznych, jak i agresywnej ekspansji i kolonizacji czynionej przez państwa europejskie.
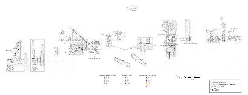
Raport został opublikowany na stronie muzeum, wraz z dokumentacją, zdjęciami oraz wykonanymi szkicami pozostałości statku, spoczywających na dnie zatoki nieopodal Newport. Miejsce, oficjalnie znane pod numerem stanowiska archeologicznego stanu Rhode Island RI 2394, znajduje się w Newport Harbor, w stanie Rhode Island i Providence Plantations, USA. Jako ukoronowanie 26-letniego programu badań archiwalnych i archeologicznych, identyfikacja RI 2394 jako Lord Sandwich (ex-HM Bark Endeavour) została oparta na podejściu „przeważającej ilości dowodów”.
Z raportem odnośnie badań można zapoznać się na stronie muzeum.
Choć swoją służbę jako HMB Endeavour jednostka pełniła przez zaledwie trzy lata, tak ten epizod ma istotne znaczenie dla historii Australii. Stąd badaczy zainteresowały niejasne losy statku po 1771 roku. Jak został wspomniane wcześniej, po tym okresie był używany jako transportowiec, który wcielono do służby wraz z wybuchem wojny o niepodległość w USA. Jednakże z racji na wyeksploatowanie w 1778 roku był już na tyle w złym stanie, że został sprowadzony do roli pływającego więzienia, a w momencie oblegania Newport przez siły amerykańsko-francuskie wraz z trzynastoma innymi statkami został celowo zatopiony i sprowadzony do roli morskiej blokady, ostatecznie rozpadając się i osiadając na dnie.
Przez kolejne wieki powracało zainteresowanie losem statku, a nowym etapem badań nad jego historią było rozpoczęcie badań przez dwóch australijskich historyków, Mike’a Connella i Des Liddy, którzy w 1998 roku ustalili los jednostki po zakończeniu udziału w pierwszej misji badawczej Jamesa Cooka (kontynuował ją potem na HMS Resolution). Badania nastręczały pewnych trudności, niemniej decyzja stanu Rhode Island o wzięciu wszystkich wraków zatopionych w 1778 roku pod opiekę i ochronę pozwoliło zapewnić bezpieczeństwo badań i pewność, że miejsca te nie zostaną naruszone podczas prac morskich, żeglugi, czy też łowców skarbów. Zawiązano również współpracę międzu australijskimi badaczami a Rhode Island Marine Archaeology Project (RIMAP) i tworząc Rhode Island Historical Preservation and Heritage Commission (RIHPHC).
Australijskie Narodowe Muzeum Morskie (ANMM) rozpoczęło współpracę z RIMAP w 1999 rroku w celu zlokalizowania wraku ex-HMB Endeavour. Ta współpraca doprowadziła do serii ekspedycji archeologicznych w 1999, 2000, 2001, 2002 i 2004 roku. Projekty te obejmowały zdalne wykrywanie dna morskiego, podwodne badania przeprowadzone przez nurków oraz analizę próbek kamienia, węgla, drewna i osadów pobranych z szeregu wraków statków z XVIII wieku. Żadne z kandydackich miejsc nie wykazało wystarczających cech, aby można je było zidentyfikować jako miejsce wraku statku interesującego badaczy statku. Prace wznowiono w 2015 roku, a kolejne ekspedycje zawężały miejsce poszukiwań, a konkretne wraki oznaczano numerami, przy czym najbardziej prawdopodobne uznano RI 2578 i RI 2394. W latach 2019-2021 przeprowadzono morskie badania archeologiczne, w trakcie których z dna odkopano elementy kadłuba, a także pobrano próbki do analizy, które miały pomóc w wykryciu śladów wskazujących na obecność na wodach Indo-Pacyfiku, co stanowiło nie lada problem. Niemniej, to właśnie te badania miały potwierdzić, że to jak i inne dowody wskazują, iż badany wrak RI 2394 to właśnie Lord Sandwich, czyli ex-HMB Endeavour. W związku z tym, biorąc pod uwagę znaczenie tego znaleziska, pozytywna identyfikacja miejsca jego wraku wymaga zapewnienia najwyższego możliwego poziomu ochrony prawnej i fizycznej, stąd instytucje państwowe oraz naukowe USA i Australii mają odtąd współpracować nad lepszym zabezpieczeniem pozostałości statku, tworzącego wspólne dziedzictwo przeszłości.
W latach 1988-1994 powstała replika HMB Endeavour, jako jednostka muzealna i atrakcja ANMM. Ma 43,6 metry długości, od bukszprytu do rufy, 9,28 metra szerokości i wysokość (wraz z masztem) 28 metrów. Posiada trzy maszty i 25 żagli o powierzchni do 1511 m2. Współczesnym rozwiązaniem na replice są dwa silniki wysokoprężne Caterpillar 3046 B o mocy 301 kW każdy. Regularnie bierze udział w rejsach trasą misji badawczych Jamesa Cooka, a także brał udział w wyprawach do Europy i USA. W 1999 roku, w ramach kilkumiesięcznego rejsu, żaglowiec opłynął kulę ziemską.
Oryginalny statek w trakcie swojej wyprawy miał 369 ton wyporności, a jego załoga liczyła ok. 90 osób. Posiadała na pokładzie m.in. piec w XVIII wieku bardzo nowoczesny, którego replikę stworzono na wzorowanej na nim jednostce. Choć jednostka pełniła funkcje badawcze, jako jednostka służąca Koronie Brytyjskiej i dla bezpieczeństwa posiadała sześć 4-funtowych armat, 8 działek relingowych, a także oddział żołnierzy chroniących wyprawę i dbających o porządek na pokładzie.
Ile można zarobić na statku? Nawet 10 tys. euro miesięcznie
00:01:39
Tak rozkłada się ciało w głębi oceanu (wideo)
Na „Titanicu” byli pasażerowie z Polski
Pracowniczki platformy wiertniczej: Dziwne jest nie to, że tu jesteśmy, tylko to, że nas tu wcześniej nie było
Ogromne lodowe kule nad Bałtykiem. Skąd się wzięły?
00:01:35
Statek kosmiczny obcych czy nazistowski bunkier pod wodą? Dziwne odkrycie w głębinach Bałtyku
Latarnie Gospodarki Morskiej 2021 w kategorii "Lider Technologii Morskich". Ruszyło głosowanie online
"Spotkanie po latach". Pokład Sokoła zwiedził były dowódca okrętu z czasów jego służby pod norweską banderą
Wynalazek UMG opatentowany przez Europejski Urząd Patentowy
Nietypowy wyraz francusko-polskiej współpracy. Powstał atomowy okręt podwodny… z klocków. Jest do kupienia
Trwa ogólnopolski konkurs Uniwersytetu Morskiego w Gdyni na nazwę dla następcy Daru Młodzieży
UMG uczcił 107. rocznicę odzyskania przez Polskę niepodległości
Bezpieczeństwo w przemyśle i logistyce morskiej: system LOTO i sorbenty – inwestycja decydująca o sukcesie operacyjnym